Projekty budów obiektów mostowych

Zagórz – LK 108 km 115,087

Drogomyśl – DP 2627S

Lubaczów – LK 101 km 38,572
Przebudowa mostu stalowego w km 115,087 linii kolejowej nr 108 Stróże – Krościenko z zastosowaniem przęseł stalowych zdemontowanych z mostu stalowego w km 1,853 linii nr 91 Kraków Główny – Medyka
Zamawiający: PKP PLK S.A. Zakład Linii Kolejowych w Rzeszowie.
Most piecioprzęsłowy, blachownicowy z pomostem ortotropowym o schemacie statycznym belki swobodnie podpartej.
Długość obiektu – 186,60 m.
Rozpiętości teoretyczne przęseł – 27,50 + 3×35,30 + 27,50 m.
Szerokość mostu – 6,40 m.
Dopuszczalny nacisk osi – 221 kN (klasa D4 wg PN-EN 15528).
W ramach zadania wykonano:
- Projekt budowalny – uzyskanie pozwolenia na budowę.
- Projekty wykonawcze branży mostowej i kolejowej.
- Dokumentację przetargową (przedmiar, kosztorys inwestorski, STWiORB).
- Nadzór autorski.
- Dokumentację powykonawczą.
Rozbiórka istniejącego i budowa nowego mostu nad rzeką Wisłą w ramach rozbudowy drogi powiatowej 2627S w Drogomyślu
Zamawiający: Powiatowy Zarząd Dróg Publicznych w Cieszynie.
Most trzyprzęsłowy, strunobetonowy z belek typu T o schemacie statycznym ramy zintegrowanej.
Długość obiektu – 51,80 m.
Rozpiętości teoretyczne przęseł – 11,95 + 26,90 + 11,95 m.
Szerokość mostu – 9,98 ÷ 11,08 m.
Nośność – klasa I wg PN-EN 1991-2.
W ramach zadania wykonano:
- Projekt budowalny – uzyskanie zezwolenia na realizację inwestycji drogowej.
- Projekty techniczne i wykonawcze branży mostowej, drogowej sanitarnej, elektrycznej oraz teletechnicznej.
- Dokumentację przetargową (przedmiar, kosztorys inwestorski, STWiORB).
- Projekt tymczasowej i docelowej organizacji ruchu.
- Nadzór autorski.
- Dokumentację powykonawczą.
Przebudowa mostu stalowego w km 38,572 linii kolejowej nr 101 Munina – Hrebenne
Zamawiający: PKP PLK S.A. Zakład Linii Kolejowych w Rzeszowie.
Most jednoprzęsłowy, blachownicowy z pomostem ortotropowym o schemacie statycznym belki swobodnie podpartej.
Długość obiektu – 26,88 m.
Rozpiętość teoretyczna przęsła – 26,00 m.
Szerokość mostu – 5,99 m.
Nośność – LM71, α =1,21 wg PN-EN 1991-2.
W ramach zadania wykonano:
- Projekt budowalny – uzyskanie pozwolenia na budowę.
- Projekt wykonawczy.
- Dokumentację przetargową (przedmiar, kosztorys inwestorski, STWiORB).
- Projekt technologiczny.
- Nadzór autorski.
- Dokumentację powykonawczą.

Łódź – LK 15 km 18,479

Kowalowa – LK 291 km 25,455

Zabrze – DTŚ W20
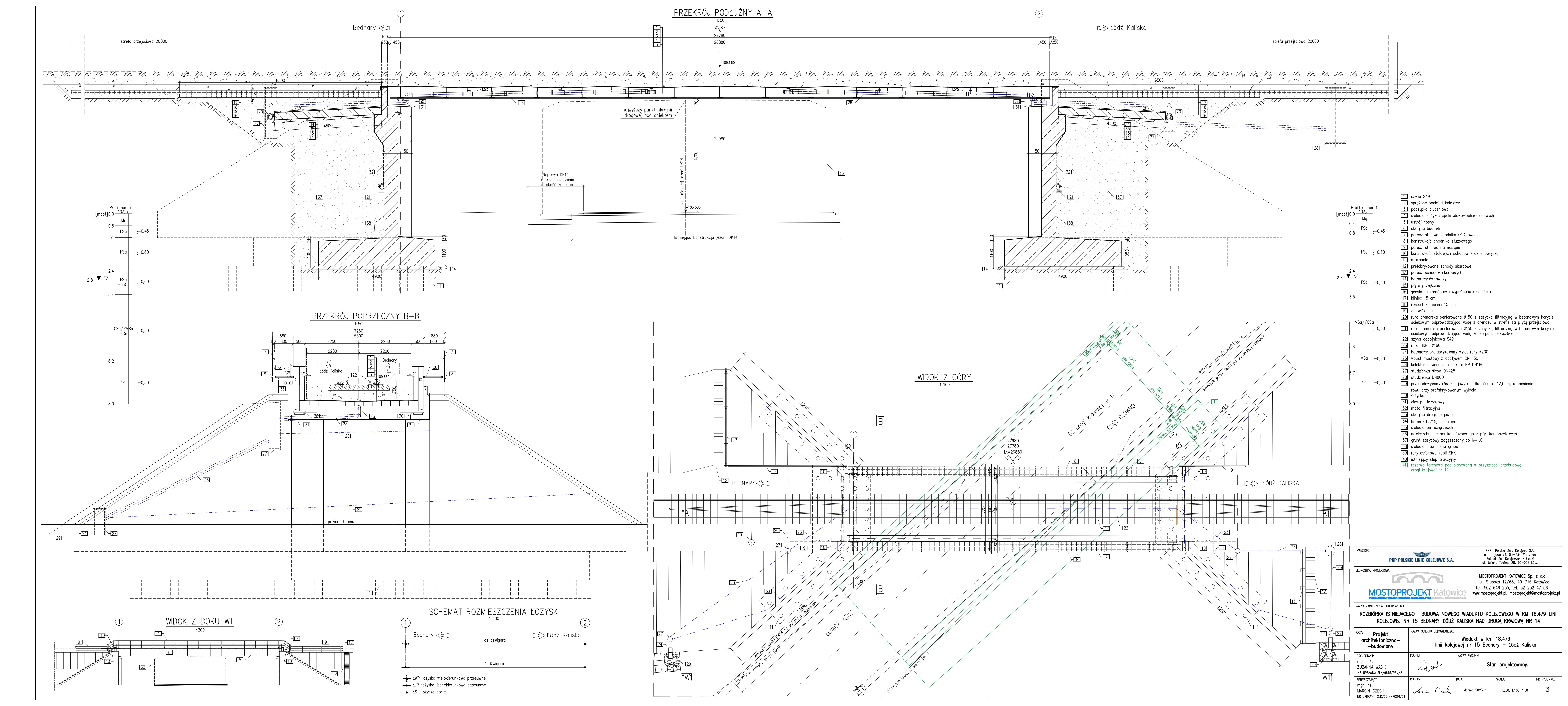
Rozbiórka istniejącego i budowa nowego wiaduktu w km 18,479 linii kolejowej nr 15 Bednary – Łódź Kaliska
Zamawiający: PKP PLK S.A. Zakład Linii Kolejowych w Łodzi.
Wiadukt jednoprzęsłowy, blachownicowy z pomostem ortotropowym o schemacie statycznym belki swobodnie podpartej.
Długość obiektu – 27,98 m.
Rozpiętość teoretyczna przęsła – 26,88 m.
Szerokość wiaduktu – 7,26 m.
Nośność – LM71, α =1,21 wg PN-EN 1991-2.
W ramach zadania wykonano:
- Projekt budowalny – uzyskanie pozwolenia na budowę.
- Projekt techniczny.
- Dokumentację przetargową (przedmiar, kosztorys inwestorski, STWiORB).
- Projekt próbnego obciążenia.
Rozbiórka istniejącego i budowa nowego wiaduktu kolejowego w km 25,455 linii kolejowej nr 291 Boguszów-Gorce Wschód – Mieroszów nad drogą gminną klasy D wraz z jej remontem na odcinku 30 m w rejonie wiaduktu
Zamawiający: PKP PLK S.A. Zakład Linii Kolejowych w Wałbrzychu.
Wiadukt jednoprzęsłowy, blachownicowy z pomostem ortotropowym o schemacie statycznym belki swobodnie podpartej.
Długość obiektu – 16,10 m.
Rozpiętość teoretyczna przęsła – 14,20 m.
Szerokość wiaduktu – 6,16 m.
Nośność – LM71, α =1,21 wg PN-EN 1991-2.
W ramach zadania wykonano:
- Projekt budowalny – uzyskanie pozwolenia na budowę.
- Projekt techniczny i wykonawczy.
- Dokumentację przetargową (przedmiar, kosztorys inwestorski, STWiORB).
- Nadzór autorski.
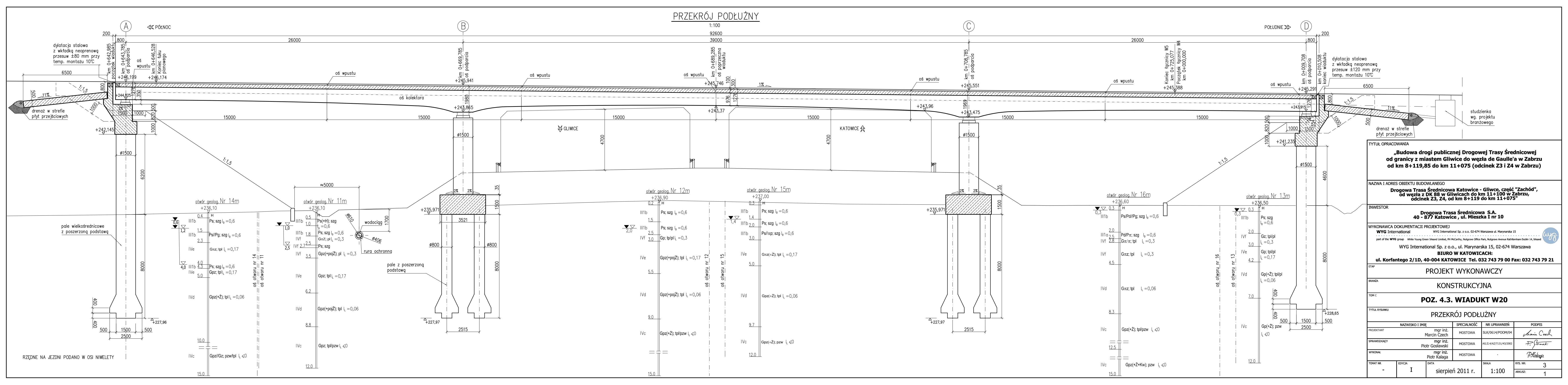
Projekt drogowego wiaduktu W20 w ramach inwestycji Budowa drogi publicznej Drogowej Trasy Średnicowej od granicy z miastem Gliwice do węzła de Gaulle’a w Zabrzu od km 8+119,85 do km 11+075 (odcinek Z3 i Z4 w Zabrzu)”
Zamawiający: Drogowa Trasa Średnicowa S.A.
Wiadukt trzyprzęsłowy, belkowy z betonu sprężonego o schemacie statycznym belki ciągłej.
Długość obiektu – 92,60 m.
Rozpiętości teoretyczne przęseł – 26,00 + 39,00 + 26,00 m.
Szerokość wiaduktu – 12,04 m.
Nośność – klasa A wg PN-85/S-10030.
W ramach zadania wykonano:
- Projekt budowalny – uzyskanie zezwolenia na realizację inwestycji drogowej.
- Projekt wykonawczy.
- Dokumentację przetargową (przedmiar, kosztorys inwestorski, STWiORB).

Żywiec – LK 97 km 76,196

Orzechowo – LK 281 km 110,586

Ustroń – ul. Akacjowa
Odbudowa mostu kolejowego w km 76,196 linii 97 Skawina – Żywiec polegająca na rozbiórce istniejącego tymczasowego obiektu mostowego oraz budowie nowego w istniejącej lokalizacji
Zamawiający: PKP PLK S.A. Zakład Linii Kolejowych w Sosnowcu.
Most jednoprzęsłowy, blachownicowy z pomostem ortotropowym o schemacie statycznym ramy otwartej.
Długość obiektu – 12,20 m.
Rozpiętość teoretyczna przęsła – 10,90 m.
Szerokość mostu – 6,24 m.
Nośność – LM71, α =1,21 wg PN-EN 1991-2.
W ramach zadania wykonano:
- Projekt budowalny – niewniesienie sprzeciwu do zgłoszenia robót budowlanych.
- Projekt wykonawczy branży mostowej, torowej, elektro-energetycznej oraz instalacyjnej.
- Dokumentację przetargową (przedmiar, kosztorys inwestorski, STWiORB).
- Nadzór autorski.
Most kolejowy w km 110,586 linii kolejowej nr 281 Oleśnica – Chojnice nad rzeką Wartą w Orzechowie
Zamawiający: PKP PLK S.A. Zakład Linii Kolejowych w Ostrowie Wielkopolskim.
Most jedenastoprzęsłowy, przęsła 1 do 3 o konstrukcji ceglanej z przęsłami łukowymi z jazdą górą, przęsła 4 do 11 o konstrukcji z dźwigarów stalowych z pomostem otwartym.
Długość obiektu – 347,23 m.
Rozpiętości teoretyczne przęseł – 3×9,80 + 23,20 + 44,50 + 44,50 + 43,80 + 22,50 + 34,70 + 43,00 + 42,50 m.
Szerokość mostu – 12,80 m – część ceglana, 12,63 m – część stalowa.
Nośność – LM71, α =1,21 wg PN-EN 1991-2.
W ramach zadania wykonano:
- Projekt wykonawczy.
- Dokumentację przetargową (przedmiar, kosztorys inwestorski, STWiORB).
- Nadzór autorski.
- Dokumentację powykonawczą
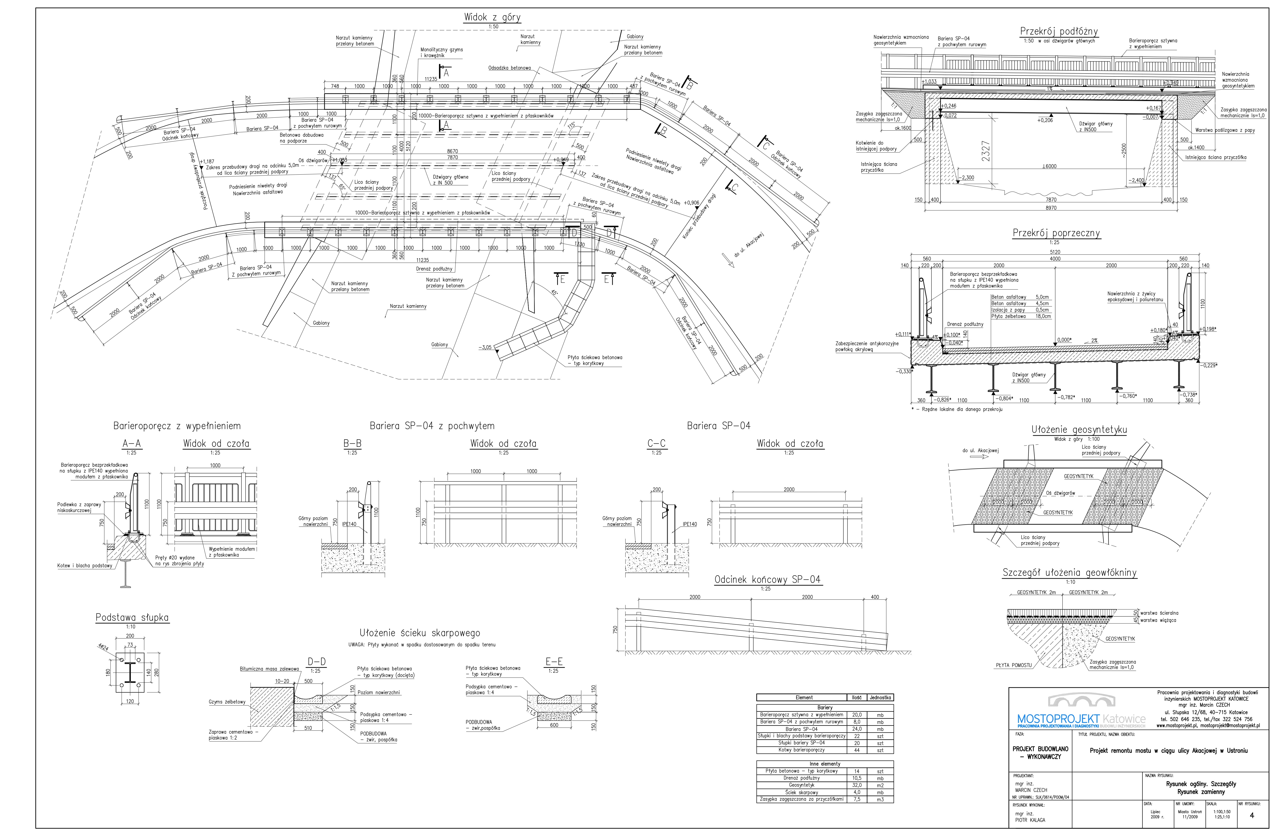
Most drogowy w ciągu ul. Akacjowej w Cieszynie
Zamawiający: Miasto Ustroń.
Most jednoprzęsłowy, z belek walcowanych zespolonych z płytą żelbetową o schemacie statycznym belki wolnopodpartej.
Długość obiektu – 13,36 m.
Rozpiętość teoretyczna przęsła – 8,27 m.
Szerokość mostu – 5,12 m.
W ramach zadania wykonano:
- Projekt budowlano – wykonawczy.
- Dokumentację przetargową (przedmiar, kosztorys inwestorski, STWiORB).
- Nadzór autorski.



















